About 572 SANCTUARY GOLF PLACE, Apopka, Florida, 32712
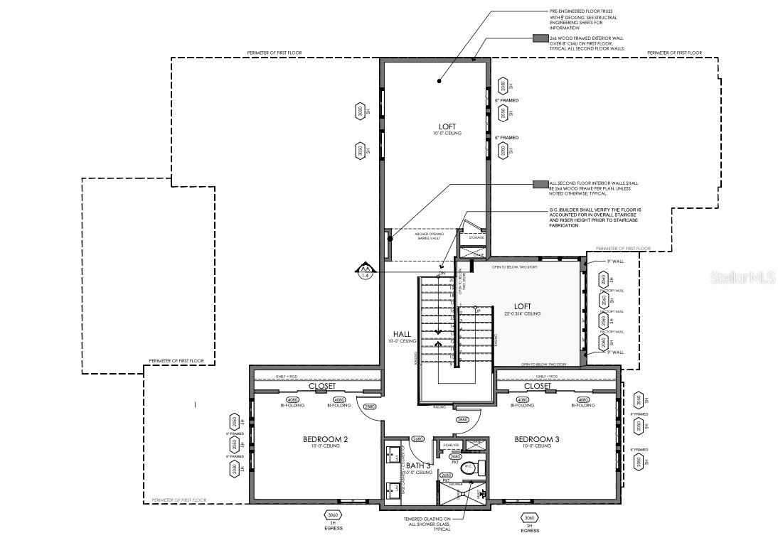
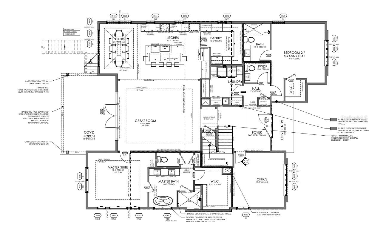
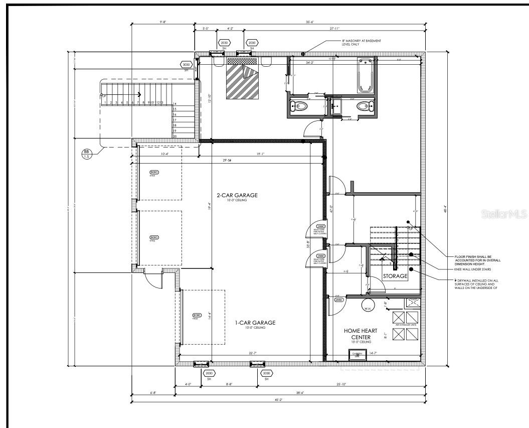
Under Construction. WALK-OUT Basement home with all the Custom Finishes! Talbot Custom Homes brings you this tri-level home with a 3 car garage and mother-in law suite, renowned for their energy-efficient and high-quality construction in Central Florida. Located in the gated Sanctuary Golf Estates, this 3-level masterpiece offers an incredible 4,400 square feet of air-conditioned living space (5,684 total under roof) and sits on a serene .29-acre lot with conservation tree views. ACT NOW and still choose your finishes & design selections! This home stands out as one of the most unique properties in Florida, boasting a rare walk-out basement. Built into the hillside with durable poured concrete walls, the basement features a 1-bedroom, 1-bathroom multi-generational suite, complete with kitchen plumbing and a private living space—ideal for extended family or guests. This level also includes a spacious 3-car garage, ensuring plenty of room for vehicles and storage. On the main level, you’ll find a light-filled, open-concept living area with designer details throughout. The kitchen showcases quartz countertops, a huge walk in pantry, high-end cabinetry, and luxury appliances, all seamlessly tied together with a modern aesthetic. The white oak engineered hardwood flooring adds warmth and elegance, while the living space flows out to a cantilevered deck overlooking your private nature preserve, with a dedicated staircase to get down to the lower level from the deck. The primary suite is a sanctuary in itself, featuring expansive windows, a large walk-in closet, and a contemporary spa-like bathroom. This floor also includes a dedicated office space, ideal for work-from-home professionals. The upper level offers even more space for your family with 2 additional bedrooms, and a versatile loft. Altogether, this home includes 5 bedrooms, 4 and 2 half bathrooms, an office, and a loft, providing the perfect blend of luxury and functionality. Talbot Custom Homes & their professional design team has spared no expense in delivering superior finishes and attention to detail, with some that you can still customize to your taste—choose your finishes now before it’s too late! Located less than 30 minutes from Downtown Orlando & Winter Park Florida, as well as less than 25 minutes to Plant Street winter Garden, this home provides peaceful living with convenient access to the 414 connector, the 429, wekiva state park, shopping, dining, and entertainment. Don’t miss your chance to own this brand-new luxury custom home, ready in Spring 2026. Contact us today to schedule your private tour and make this exceptional property yours!
Water Access : 0
Association Amenities : Gated
Garage On Property : Yes.
Road Surface Type : Asphalt
Heating : Central
Cooling : Central Air
Interior Features : Primary Bedroom Main Floor
Laundry Features : Laundry Room
Appliances : Built-In Oven
Water Access : 0
Association Amenities : Gated
Garage On Property : Yes.
Road Surface Type : Asphalt
Heating : Central
Cooling : Central Air
Interior Features : Primary Bedroom Main Floor
Laundry Features : Laundry Room
Appliances : Built-In Oven

Street Address: 572 SANCTUARY GOLF PLACE
City: Apopka
State: Florida
Postal Code: 32712
County: Orange
Directions: From the 414 maitland connector head up 451 to vick road exit, right into sanctuary golf ridge subdivision, house on right.

Property Information :
Listing Status: Active
Size: 4,462 Sqft
Lot Size: 0.29 Acres
MLS #: O6347973
Bedrooms: 5 bd
Bathrooms: 5 ba
Price: $1,250,000
Construction Status: Built in 2025
Last Modified : Dec 13 2025 2:10AM

Courtesy of: Justin Pekarek, ORLANDO PROPERTY ADVISORS (MLS# 261017555)
Source MLS: StellarMLS