About 8574 SW SAND CRANE CIRCLE, Arcadia, Florida, 34269
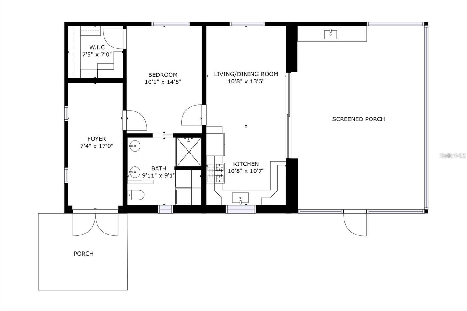
Lot 53 – The Ultimate Private Retreat in Thornton Creek Motorcoach Resort Welcome to Lot 53, one of the most secluded and thoughtfully designed properties in the entire resort. Situated on an expansive .23-acre corner lot, this fully furnished, luxury casita offers a rare combination of indoor elegance, outdoor indulgence, and unmatched privacy—ideal for pet owners or those seeking a peaceful personal retreat. The property boasts a massive 25' x 80' pull-in paver pad and is bordered by the resort’s perimeter wall on two sides, with only one neighboring lot. A retaining wall and gated access enclose the yard completely, creating one of the most private and secure outdoor spaces in the community. Step inside the 1,000 sq. ft. casita to find tongue and groove ceilings, elegant tile flooring, and a layout that flows seamlessly between function and luxury. The home is equipped with a brand-new AC system (2025), ensuring year-round comfort. The spacious master suite features a king-size Sleep Number bed, a custom walk-in closet with built-in shelving, and an integrated office space designed for productivity without sacrificing style. The spa-inspired bathroom is a true showstopper, with a herringbone-tiled walk-in shower featuring both rainfall and handheld shower heads, offering a daily touch of indulgence. The fully indoor kitchen is a culinary dream, outfitted with dark blue ceiling-height cabinetry, gorgeous granite countertops, a gas cooktop/oven, low-profile hood, and modern fixtures—all set against 9-foot ceilings for an elevated aesthetic. Open the 12-foot pocket sliding doors to reveal a covered lanai designed for year-round enjoyment, featuring a wet bar, screened patio, LED lighting integrated into the beams, a hard-piped propane fire pit, and a saltwater Hot Springs hot tub for the ultimate in outdoor relaxation. Additional highlights include a walkable, spray-foam insulated attic that stays cool year-round and an air-conditioned golf cart garage for added convenience. The casita is beautifully lined with vibrant, fuchsia-colored dwarf bougainvillea bushes, enhancing its curb appeal and tropical charm. Lot 53 is the epitome of comfort, privacy, and resort-style living. Schedule your private showing today and experience this one-of-a-kind retreat for yourself.
Utilities : BB/HS Internet Available
Water Access : 0
Sewer : Public Sewer
Garage On Property : Yes.
Garage Spaces: 1
Exterior Features : Hurricane Shutters
Patio And Porch Features : Covered
Road Surface Type : Asphalt
Roof : Metal
Property Condition : Completed
Zoning : RSF-3
Heating : Central
Cooling : Central Air
Construction Materials : HardiPlank Type
Interior Features : Built-in Features
Appliances : Bar Fridge
Flooring : Tile
Utilities : BB/HS Internet Available
Water Access : 0
Sewer : Public Sewer
Garage On Property : Yes.
Garage Spaces: 1
Exterior Features : Hurricane Shutters
Patio And Porch Features : Covered
Road Surface Type : Asphalt
Roof : Metal
Property Condition : Completed
Zoning : RSF-3
Heating : Central
Cooling : Central Air
Construction Materials : HardiPlank Type
Interior Features : Built-in Features
Appliances : Bar Fridge
Flooring : Tile

Street Address: 8574 SW SAND CRANE CIRCLE
City: Arcadia
State: Florida
Postal Code: 34269
County: DeSoto
Directions: From US 17 East, turn left onto SW Liverpool Rd. Turn Right onto SW Sunnybreeze Rd and then turn left onto SW Sand Crane Circle.

Property Information :
Listing Status: Active
Size: 750 Sqft
Lot Size: 0.23 Acres
MLS #: C7517814
Bedrooms: 1 bd
Bathrooms: 1 ba
Price: $489,000
Tax Amount: 6736.66
Construction Status: Built in 2019
Last Modified : Dec 13 2025 2:16AM

Courtesy of: Laura Frantz, COLDWELL BANKER SUNSTAR REALTY (MLS# 274501490)
Source MLS: StellarMLS