About 438 RED MAPLE Drive, Mandeville, Louisiana, 70448
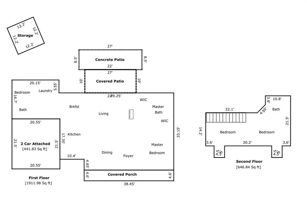
Discover this stunning, well designed home, surrounded by manicured landscaping offering a spacious and inviting living experience and located in a gated community offering neighborhood pool, tennis and playground. The thoughtfully planned layout includes 2 bedrooms downstairs and 2 upstairs, ensuring both privacy and convenience for all. With 3 full baths, everyone can enjoy their own space without compromise. The living room features a soaring ceiling that creates a bright and airy atmosphere, complemented by a charming fireplace which is flanked by custom built-ins—perfect for showcasing your favorite books or decor. The primary bedroom is a private haven, complete with a spa-like en suite bathroom for ultimate relaxation. This home is as practical as it is stylish, boasting all hard flooring for easy maintenance and 2-year-old roof and AC systems for long-term peace of mind. The oversized yard is ideal for outdoor activities, and the 27-foot covered patio, along with an additional open patio, offer ample space for entertaining or unwinding. A 12 x 12 storage shed provides extra functionality. Priced below its current appraisal (attached), this exceptional property won’t last long. Schedule your tour today!
Water Source : Public
Sewer : Public Sewer
Parking Features: Attached, Garage, Two Spaces, Garage Door Opener
Has Garage
Exterior Features: Fence, Porch, Patio
Patio And Porch Features : Concrete, Covered, Patio, Porch
Lot Features : Outside City Limits, Oversized Lot
Architectural Style : French Provincial
Property Condition : Excellent
Pool Features:Community
Appliances : Cooktop, Dryer, Dishwasher, Microwave, Oven, Range, Refrigerator, Washer
Heating : Yes.
Heating System : Central, Multiple Heating Units
Cooling: Central Air, 2 Units
Construction Materials: Brick, Stucco
Foundation Details: Slab
Levels : One and One Half
Roof Type: Shingle
Interior Features: Attic, Cathedral Ceiling(s), Granite Counters, High Ceilings, Stone Counters, Stainless Steel Appliances, Vaulted Ceiling(s)
Fireplace : Yes.
Fireplace Features: Gas Starter, Wood Burning
Green Energy Efficient :HVAC
Water Source : Public
Sewer : Public Sewer
Parking Features: Attached, Garage, Two Spaces, Garage Door Opener
Has Garage
Exterior Features: Fence, Porch, Patio
Patio And Porch Features : Concrete, Covered, Patio, Porch
Lot Features : Outside City Limits, Oversized Lot
Architectural Style : French Provincial
Property Condition : Excellent
Pool Features:Community
Appliances : Cooktop, Dryer, Dishwasher, Microwave, Oven, Range, Refrigerator, Washer
Heating : Yes.
Heating System : Central, Multiple Heating Units
Cooling: Central Air, 2 Units
Construction Materials: Brick, Stucco
Foundation Details: Slab
Levels : One and One Half
Roof Type: Shingle
Interior Features: Attic, Cathedral Ceiling(s), Granite Counters, High Ceilings, Stone Counters, Stainless Steel Appliances, Vaulted Ceiling(s)
Fireplace : Yes.
Fireplace Features: Gas Starter, Wood Burning
Green Energy Efficient :HVAC

Street Address: 438 RED MAPLE Drive
City: Mandeville
State: Louisiana
Postal Code: 70448
Directions: Hwy 1088 entrance on Sweet Bay go left then take next right to Red Maple.

Property Information :
Listing Status: Withdrawn
Size: 2,559 Sqft
Lot Size: 0.30 Acres
MLS #: 2483993
Bedrooms: 4 bd
Bathrooms: 3 ba
Price: $485,000
Construction Status: Built in 1997
Last Modified : Jul 30 2025 3:35AM
Amenities :
Fireplace
Energy Efficient

Courtesy of: Tammy Whitehead, LATTER & BLUM (LATT15) (MLS# LATT15)
Source MLS: GSREIN