About 9404 Ragwing Lane, McKinney, Texas, 75071
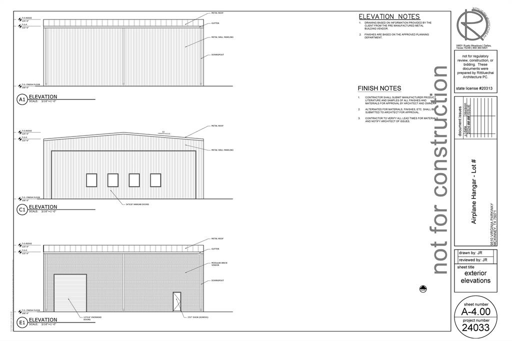
NEW-CONSTRUCTION AIRCRAFT HANGAR: NEW DEVELOPMENT AT AERO COUNTRY EAST AIRPORT, T31, MCKINNEY, TX. Hangar Footprint: 60W X 60L x 25H HANGAR, with single panel hangar door: 54 x 18, with 4 windows and hydraulic PowerLift hangar door opener, with 2 remotes. Hangar includes half-bath, LED hangar lights, outdoor water bib, 220 electric panel and more. Estimated completion of hangar construction: December 2025. CUSTOMIZE YOUR HANGAR: We can add a mezzanine, pilot's crew quarters, home office or residential living. T31 AIRPORT INFORMATION: 3000' Paved & Lighted Runway 17-35, PLUS a 1500' airstrip. Aircraft wight limit: up to 6500 lbs. NO FLIGHT SCHOOLS. HOA-CITY REGS: Not for full-time residential use. (Part-time residential use allowed, welcomed & encouraged.) HANGARS ARE NOT FOR COMMERCIAL USE OR RETAIL BUSINESS USE; (Strictly enforced). AMENITITES: Gated airport & community pool & amenity center for owners & guests. OWN THE LAND. THIS IS NOT A GROUND LEASE. Come join an amazing group of aviators and make T31 your home airport. Conveniently located west of Dallas North Tollway & south of HWY 380. UNDERGROUND UTILITIES: City water, city sewer, high speed fiber optics and natural gas. BRING YOUR AIRCRAFT, MOTORCYCLES, CAR COLLECTION, RV's, BOATS AND TOYS!
1 Unit(s)
Business Type: Airport
Utilities : City Sewer, City Water, Co-op Electric, Concrete, Curbs, Natural Gas Available, Phone Available, Underground Utilities
Parking Features: Common, Garage, Garage Door Opener, Garage Faces Front, Heated Garage, Inside Entrance, Parking Lot, RV Access/Parking, RV Garage, See Remarks
Accessibility Features: Accessible Bath - Half+Hall
Lot Features : Airstrip, Subdivision, Taxi-way
Lot Features : Metal
Road Frontage Type : City Street
Building Use : Automotive, Other
Construction Materials: Metal Siding
Construction Materials Walls : Metal
Foundation Details: Slab
Flooring : Concrete
Ceiling Height : More than 20 Feet
Green Verification Count : 0
Special Notes : Aerial Photo, Build to Suit, Deed Restrictions, Environ. Study Complete, Phase I Complete, Survey Available, Utility Easement, Verify Rollback Tax
Zoning Description : COM Aircraft Hangar (Not for commercial use)
Title Company Preferred: Sendera Title JEN HAIL
1 Unit(s)
Business Type: Airport
Utilities : City Sewer, City Water, Co-op Electric, Concrete, Curbs, Natural Gas Available, Phone Available, Underground Utilities
Parking Features: Common, Garage, Garage Door Opener, Garage Faces Front, Heated Garage, Inside Entrance, Parking Lot, RV Access/Parking, RV Garage, See Remarks
Accessibility Features: Accessible Bath - Half+Hall
Lot Features : Airstrip, Subdivision, Taxi-way
Lot Features : Metal
Road Frontage Type : City Street
Building Use : Automotive, Other
Construction Materials: Metal Siding
Construction Materials Walls : Metal
Foundation Details: Slab
Flooring : Concrete
Ceiling Height : More than 20 Feet
Green Verification Count : 0
Special Notes : Aerial Photo, Build to Suit, Deed Restrictions, Environ. Study Complete, Phase I Complete, Survey Available, Utility Easement, Verify Rollback Tax
Zoning Description : COM Aircraft Hangar (Not for commercial use)
Title Company Preferred: Sendera Title JEN HAIL

Street Address: 9404 Ragwing Lane
City: McKinney
State: Texas
Postal Code: 75071
County: Collin
Directions: Must put this address in GPS: 99 Lloyd Stearman Drive, McKinney, TX. Gated airport with restricted address. Once through gate, take Lloyd Stearman to end of concrete. Turn Left. Lot 89, 9404 Ragwing is second lot on left.

Property Information :
Listing Status: Active
Size: 3,600 Sqft
Lot Size: 0.21 Acres
MLS #: 21063122
Price: $775,000
Construction Status: New Construction
New Construction: Yes
Last Modified : Dec 13 2025 1:29AM

Courtesy of: Jeanie Cline, AirSpace (MLS# AIRS01)
Source MLS: NTREIS