About 1393 ZESTY CITRUS LANE, Minneola, Florida, 34715
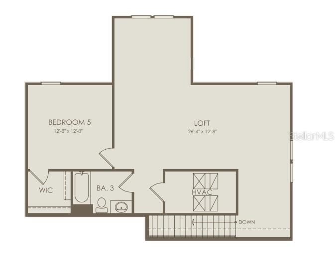
Del Webb at Minneola is a luxurious guard-gated 55+ active adult community offering new construction single-family homes in an unrivaled location on one of the highest peaks in Central Florida. Del Webb Minneola will offer an abundance of resort-style amenities with social events and activities planned by a full-time Lifestyle Director - centered in the stunning clubhouse which offers views of Sugarloaf Mountain. Planned community amenities include a zero-entry resort-style pool, in-ground heated spa, sports courts, on-site bar & grille with indoor and outdoor seating, a fitness center and walking/biking trails. Monthly HOA includes 1 GB high-speed internet, 75 streaming channels and your home's yard maintenance. Visit today to learn more and see for yourself why Del Webb Minneola is the absolute best place to call home! Experience the perfect blend of luxury and convenience with this brand-new, ready-to-move-in Mystique Grand home by Pulte. This two-story home offers a thoughtfully designed layout featuring 4 bedrooms, an enclosed flex room, 4 bathrooms, and a 2-car garage. The owner's suite is conveniently located on the first floor, offering a private retreat with a spa-inspired en suite bathroom. The heart of the home is the open-concept kitchen, café, and gathering room, where natural light floods the space, creating a welcoming and airy atmosphere. Tall ceilings, expansive windows, and a pocket sliding glass door leading to the screened-in extended covered lanai and outdoor kitchen seamlessly blend the indoor and outdoor living areas, ideal for effortless entertaining. The gourmet kitchen is a true highlight, featuring built-in Whirlpool appliances – including a natural gas cooktop, 42” soft-close cabinetry with clear glass uppers, quartz countertops, and a decorative tile backsplash. A spacious walk-in pantry, upgraded faucet, and stainless-steel single-bowl sink completes this culinary space, which is both stylish and functional. The owner's suite is designed for relaxation, with an en suite bathroom that includes a frameless glass enclosed shower, garden tub, dual vanity with quartz countertops, a linen closet, and an enclosed toilet for added privacy. On the first floor, you’ll also find 2 spare bedrooms and 2 bathrooms (one of which is an en suite) and an enclosed flex room that can easily serve as an office, hobby room, or guest retreat. Upstairs, the expansive loft provides additional space for leisure, and the third bedroom features its own walk-in closet and private bathroom. Throughout the home, designer-curated finishes enhance the sense of luxury, including comfort height toilets, brushed nickel hardware and plumbing fixtures, garage floor epoxy finish, crown molding in the main living areas, and under cabinet lighting in the kitchen. The entire home is outfitted with beautiful tile, with the exception of the loft, stairs, and upstairs bedroom, which are complemented by plush, stain-resistant Shaw brand carpet. This home is also equipped with the latest in-home technology, including a smart thermostat, video doorbell, LED downlights, digital IP camera pre-wire, electric car plug-in, retractable hose central vacuum package, surround sound speakers, and garage lighting package. Don’t miss the opportunity to own this beautifully designed home with unparalleled functionality and elegance. Schedule your tour today!
Utilities : BB/HS Internet Available
Water Access : 0
Sewer : Public Sewer
Parking Features : Lighting
Garage On Property : Yes.
Garage Spaces: 2
Security Features : Gated Community
Exterior Features : Lighting
Patio And Porch Features : Covered
Road Surface Type : Paved
Roof : Shingle
Property Condition : Completed
Heating : Central
Cooling : Central Air
Construction Materials : Block
Interior Features : Eat-in Kitchen
Laundry Features : Inside
Appliances : Built-In Oven
Flooring : Carpet
Utilities : BB/HS Internet Available
Water Access : 0
Sewer : Public Sewer
Parking Features : Lighting
Garage On Property : Yes.
Garage Spaces: 2
Security Features : Gated Community
Exterior Features : Lighting
Patio And Porch Features : Covered
Road Surface Type : Paved
Roof : Shingle
Property Condition : Completed
Heating : Central
Cooling : Central Air
Construction Materials : Block
Interior Features : Eat-in Kitchen
Laundry Features : Inside
Appliances : Built-In Oven
Flooring : Carpet

Street Address: 1393 ZESTY CITRUS LANE
City: Minneola
State: Florida
Postal Code: 34715
County: Lake
Directions: (From I-4 West to Turnpike N.) On I-4 W take Turnpike N. exit 278 for Minneola. Turn right at the exit ramp stop light onto Hancock Road. Follow Hancock Road North to the next stop sign. Del Webb Minneola is located straight ahead.

Property Information :
Listing Status: Active
Size: 3,108 Sqft
Lot Size: 0.14 Acres
MLS #: O6362906
Bedrooms: 4 bd
Bathrooms: 4 ba
Price: $899,000
Tax Amount: 3137.59
Construction Status: Built in 2025
Last Modified : Dec 13 2025 2:15AM

Courtesy of: Adrienne Escott, PULTE REALTY OF NORTH FLORIDA LLC (MLS# 261016097)
Source MLS: StellarMLS