About 4420 7TH AVENUE, Ocala, Florida, 34479
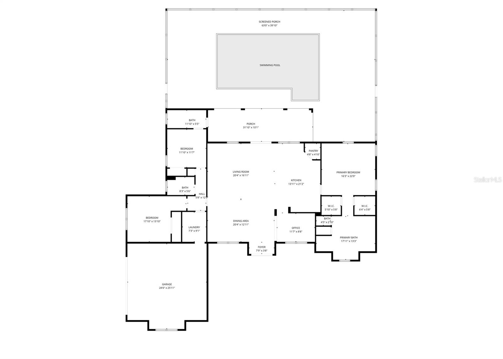
Experience refined country living at its finest in this beautifully maintained 2,400+ sq ft custom estate, perfectly positioned on 5+ pristine, fully fenced acres with an impressive automatic gated entry. From the moment you arrive, the property radiates privacy, sophistication, and pride of ownership. Inside, the home welcomes you with an open-concept design, soaring 10-ft crown-molded ceilings, and an abundance of natural light that fills the spacious living areas. The bright, airy layout is ideal for both relaxed everyday living and effortless entertaining. At the heart of the home, the chef’s kitchen shines with marble countertops, a generous sit-in island with built-in storage, double wall ovens, and premium finishes, all enhanced by built-in surround sound that carries through the main living spaces. The primary suite is a luxurious escape featuring dual walk-in closets, a 6-ft soaking tub, a beautifully tiled walk-in shower, and a dual-sink vanity designed for comfort and style. The finished garage stands out with custom cabinetry, shelving, and tiled flooring—offering exceptional storage, organization, and workspace for hobbies, vehicles, or equipment. Step outside to a true resort-style oasis. The 16x32 heated in-ground pool, spa-inspired hot tub, and expansive patio invite year-round relaxation and outdoor living. Whether you’re enjoying quiet mornings by the water or hosting weekend gatherings, this space elevates everyday life. Energy-efficient upgrades—including solar panels and a tankless water heater—provide modern convenience and long-term savings. The open acreage offers endless possibilities: bring your horses, create recreational spaces, or plan future expansions tailored to your lifestyle. All of this is ideally located just 15 minutes from downtown Ocala and under 30 minutes from the World Equestrian Center—close enough for convenience, yet far enough to enjoy the tranquility of private estate living. Seller is offering the option to purchase fully furnished, making this a rare turnkey property that effortlessly combines luxury, comfort, and unmatched privacy. Properties like this simply don’t come along often. Schedule your tour TODAY!
Water Access : 0
Sewer : Septic Tank
Garage On Property : Yes.
Garage Spaces: 2
Road Surface Type : Paved
Heating : Electric
Cooling : Central Air
Interior Features : Built-in Features
Laundry Features : Laundry Room
Appliances : Built-In Oven
Flooring : Tile
Water Access : 0
Sewer : Septic Tank
Garage On Property : Yes.
Garage Spaces: 2
Road Surface Type : Paved
Heating : Electric
Cooling : Central Air
Interior Features : Built-in Features
Laundry Features : Laundry Room
Appliances : Built-In Oven
Flooring : Tile

Street Address: 4420 7TH AVENUE
City: Ocala
State: Florida
Postal Code: 34479
County: Marion
Directions: From WEC you will exit the WEC property on NW 80th Ave heading south/east toward the main roads. Turn right (east) onto State Road 326 / W Hwy 326 (or local roads connecting to it). Continue on SR 326 heading east into more central Ocala. SR 326 is a main route. As you approach Ocala, merge / turn toward NE 42nd Street when directed (using local roads). Turn right (south) onto NE 42nd Street. Drive down NE 42nd Street to NE 7th Avenue. Turn left onto NE 7th Avenue. Continue about 700 feet, and the destination 4420 NE 7th Ave will be on your left.

Property Information :
Listing Status: Active
Size: 2,488 Sqft
Lot Size: 5.06 Acres
MLS #: OM714029
Bedrooms: 3 bd
Bathrooms: 3 ba
Price: $1,599,000
Construction Status: Built in 2018
Last Modified : Dec 13 2025 2:14AM

Courtesy of: Cameron Cowart, DALTON WADE INC (MLS# 260031661)
Source MLS: StellarMLS