About SR-307 KM-7 URB BELLO HORIZONTE, Unknown, Puerto Rico, 00623
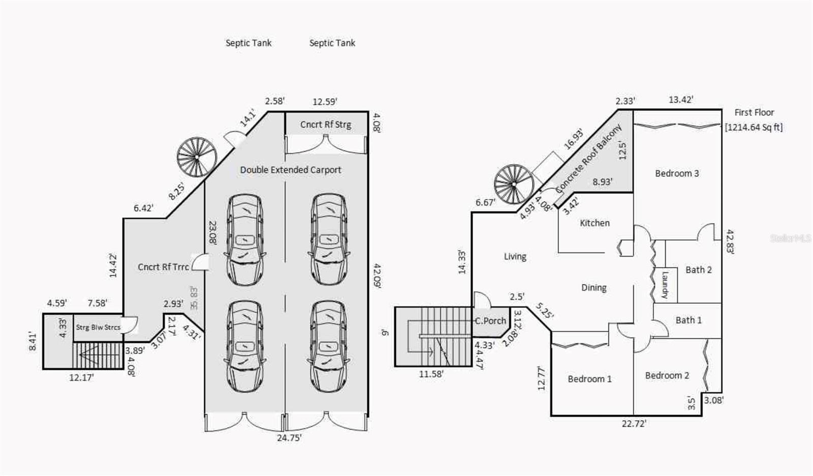
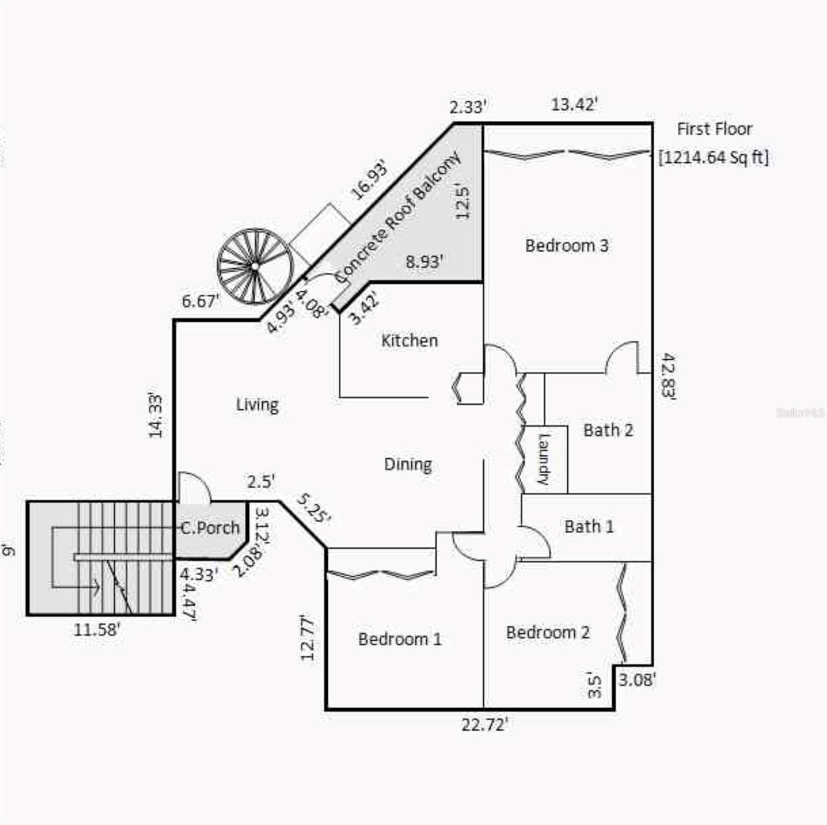
A Two-story single-family residence located in the gated community of Bello Horizonte Development in Cabo Rojo, Puerto Rico. This property offers a harmonious combination of comfort, privacy, and convenience in one of the most desirable residential areas on the island’s southwest coast. The home sits on a 589 square meter interior lot with rectangular configuration and level topography, featuring concrete construction and a gross living area of approximately 1,215 square feet. Designed for tropical living, the house includes six rooms, three bedrooms, and two full bathrooms, offering a comfortable and functional layout. The interior features ceramic floors, concrete walls, and modern finishes throughout the living, dining, and kitchen areas. Each space shows average to good condition, reflecting proper maintenance and normal signs of wear. Humidity was observed in limited areas with a minimal estimated cost to cure of approximately $1,000. Outdoor amenities enhance the property’s appeal and functionality, including a porch, balcony, double extended carport with space for up to four vehicles, two concrete storage units, a spacious concrete roof terrace, and fenced paved areas. The home also includes a spiral staircase that leads to the rooftop, providing open-air views of the residential surroundings. A diesel generator is located on site but considered personal property and excluded from the valuation. The site is located within Flood Zone X (FEMA Map 72000C1545J, dated 11/18/2009), meaning it lies outside the Special Flood Hazard Area. Zoning is classified as RT-I (Intermediate Touristic Residential), allowing for a wide range of residential uses and representing excellent potential for both primary occupancy and long-term investment. Public utilities include PREPA for electricity and PRASA for water, with a private septic tank system located on the rear side of the property. The appraiser notes an extraordinary assumption that the septic tank complies with applicable building and environmental codes. The Bello Horizonte Development is a tranquil and access-controlled neighborhood featuring asphalt roads, concrete sidewalks, curbs, and gutters. The area maintains a stable growth rate and balanced supply and demand in its housing market, with typical marketing times between 3 to 6 months. Nearby amenities include schools, supermarkets, service stations, restaurants, and recreational areas. Access to the main regional highway PR-307 provides easy connectivity to downtown Cabo Rojo, Boquerón Beach, and the scenic coastal routes leading toward Joyuda and El Combate. Market data reflects strong residential stability in this sector. Comparable sales within similar developments ranged between $335,000 and $420,000, supporting a market value conclusion of $364,000 as of August 27, 2025. The property was tenant-occupied at the time of inspection, generating rental income of approximately $650 each month (utilities not included). This property represents a solid opportunity to own a well-maintained home in one of Cabo Rojo’s most sought-after gated communities—ideal for those seeking a peaceful residential environment near Puerto Rico’s most beautiful beaches, natural reserves, and vibrant coastal lifestyle.
Utilities : Electricity Available
Water Access : 0
Sewer : Septic Tank
Garage On Property : Yes.
Garage Spaces: 2
Exterior Features : Other
Road Surface Type : Asphalt
Roof : Concrete
Zoning : RT-I
Construction Materials : Concrete
Interior Features : Ninguno
Laundry Features : None
Appliances : None
Flooring : Ceramic Tile
Utilities : Electricity Available
Water Access : 0
Sewer : Septic Tank
Garage On Property : Yes.
Garage Spaces: 2
Exterior Features : Other
Road Surface Type : Asphalt
Roof : Concrete
Zoning : RT-I
Construction Materials : Concrete
Interior Features : Ninguno
Laundry Features : None
Appliances : None
Flooring : Ceramic Tile

Street Address: SR-307 KM-7 URB BELLO HORIZONTE
City: Unknown
State: Puerto Rico
Postal Code: 00623
Directions: From Rafael Hernández Airport (BQN) in Aguadilla, drive southeast on PR-107 and merge onto PR-2 South toward Mayagüez. Continue on PR-2 for approximately 38 miles, passing through the municipalities of Aguada, Añasco, and Mayagüez. After entering Cabo Rojo, take the exit toward PR-100 South (direction Combate/Boquerón). Continue on PR-100 for about 8 miles, then turn right onto PR-307 toward Boquerón. Follow PR-307 for approximately 3.5 miles, then turn left onto the entrance road of Bello Horizonte Development. The property (Lot 11) is located within this access-controlled community. Show identification at the gate for authorized entry.

Property Information :
Listing Status: Active
Size: 1,215 Sqft
Lot Size: 0.14 Acres
MLS #: PR9116963
Bedrooms: 3 bd
Bathrooms: 2 ba
Price: $369,900
Construction Status: Built in 1985
Last Modified : Dec 13 2025 2:10AM

Courtesy of: Eddie Nieves Santiago, EDDIE NIEVES SANTIAGO (MLS# 742503070)
Source MLS: StellarMLS